| Адміністративний район | Житомирський |
| Теріторіальна громада | Харитонівська сільська рада |
| Населений пункт | село Глибочок |
| КАТОТТГ населенного пункту | UA18040550020075772 |
| Назва містобудівної документації |
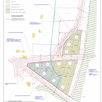
Детальний план території земельної ділянки орієнтовною площею 1,5 га, яка розташована в селі Глибочок по вул. Лісовій Коростишівського району Житомирської області для розміщення житлових будинків
|
| Ознака розташування | в межах населеного пункту |
| Площа ДПТ, га | 1,5 |
| Рішення про розроблення |
Харитонівської сільської ради від 12.03.2019 Про розроблення детального плану території земельної ділянки розташованої в селі Глибочок по вул. Лісовій Коростишівського району Житомирської області
|
| Рішення про затвердження |
Харитонівської сільської ради від 14.07.2020 Про затвердження детального плану території земельної ділянки, яка розташована в селі Глибочок по вул. Лісовій Коростишівського району Житомирської області
|
| Протокол громадських слухань | Переглянути |
| Протокол архітектурно-містобудівної ради | Переглянути |
| Графічні матеріали документації | Завантажити |
| Текстові матеріали документації | Завантажити |
| Розробник документації | ПП “МІСТОБУДІВНА ПОЛІТИКА”/м.Житомир/40617309 |
| Розпорядник інформації | Харитонівська сільська рада |
